Vorige | Volgende

Wilhelminastraat 22 Hoensbroek

Bewaar object
Deze woning is verkocht

Omschrijving

Bent u op zoek naar een nette woning, op zeer ruim perceel, met een loods, in Hoensbroek?
Zoek dan zeker niet verder en kom eens kijken in deze woning.

KELDER:

Via buitenom te bereiken kelderruimte is verdeeld over meerdere ruimtes onder de gehele woning.

BEGANE GROND:

Eigen oprit/parkeerplaats voor meerdere auto's.
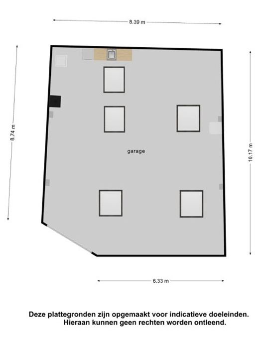
Garage/loods (86mē) met aansluiting voor de wasmachine/droger.

Entree, hal, toegang tot de woonkamer en open keuken met eetgedeelte (samen 42mē).
De benedenverdieping geheel voorzien van een visgraat-vloer.
De keuken is voorzien van: vaatwasser, kookplaat, oven, magnetron, koelkast en afzuigkap.

Via de woonkamer/keuken bereikbare badkamer voorzien van doucheruimte en wasmeubel.

EERSTE VERDIEPING:

2 slaapkamers (24mē en 16mē).
2e toilet met wasmeubel.

TWEEDE VERDIEPING:

Via een vaste trap bereikbare zolder waar ook de HR CV Ketel geplaatst is (eigendom en volledig gereviseerd in 2021).

BIJZONDERHEDEN:

Afgelopen jaar zijn de volgende werkzaamheden uitgevoerd:
-vloer isolatie aangebracht in de woonkamer/keuken;
-houtkachel in 2022 in de woonkamer geplaatst;
-8 zonnepanelen (eigendom) op de loods geplaatst;
-beveiligingssysteem op de woning en loods (eigendom);
-brandalarm in de woning via een meldkamer;
-kunststof kozijnen met HR++ glas;
-geheel voorzien van rolluiken.

Voor specifieke maten zie de bijgevoegde plattegronden.
Lees de volledige omschrijving

Kenmerken

Overdracht

Aanvaarding
in overleg

Bouw

Soort woning
eengezinswoning
Type woning
twee onder een kapwoning
Soort bouw
bestaande bouw
Bouwjaar
1915
In aanbouw
nee

Details

Permanente bewoning
ja
Daktype
zadeldak
Dakmateriaal
pannen

Oppervlakten en inhoud

Woonoppervlakte
108 m²
Oppervlakte overige functies
105 m²
Perceel
465 m²
Inhoud
732 m³

Indeling

Aantal kamers
4
Aantal slaapkamers
3
Aantal etages
3

Isolatie en verwarming

Soort verwarming
cv ketel
Warmwater installatie
cv ketel

Energielabel

Energielabel
E
Einddatum energielabel
2031-08-10

Kadastrale gegevens

Kadastrale aanduiding
HOENSBROEK B 3156
Oppervlakte
465 m²
Eigendomssituatie
volle eigendom

Buitenruimte

Tuintype(n)
achtertuin, zijtuin
Hoofdtuin achterom
nee

Garage

Garagesoorten
vrijstaand steen
Capaciteit
8
Voorzieningen
elektra, elektrische deur, water

Parkeergelegenheid

Faciliteit
op eigen terrein, openbaar parkeren
Bekijk alle kenmerken

Alle foto's

Deel dit object